Prosjektert enebolig med dobbel carport - Rødshøgda, Kongsberg
Rødshøgda, tomt A3-1

Faro, en moderne funkisbolig med altan og dobbelt carport.
Drømmer du om en komplett bolig med særpreg, luft og lys?
Faro gir deg alt dette, og mer.
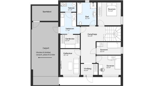
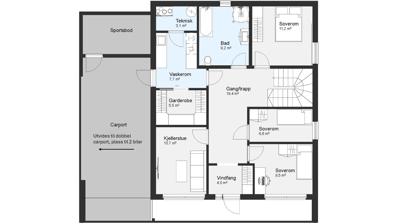
- 5 soverom – god plass til familie og gjester
- 2 bad + vaskerom – praktisk og funksjonelt
- Åpen stue/kjøkkenløsning med skrå himling og store vinduer
- Kjellerstue – egne soner for privatliv og fellesskap
- Stor altan – perfekt for sosiale stunder og lange sommerkvelder
- Integrert carport for 2 biler - gå tørrskodd fra carport og inn. Kan leveres som garasje, be om pris.
- Stor sportsbod
Faro er et godt valg for deg som ønsker en moderne bolig med rom for både liv og lek.
Boligen har hele 5 soverom, 2 bad, praktisk vaskerom med tilstøtende garderobe, kjeller stue, integrert carport med plass til 2 biler samt stor sportsbod. I 2. etasjen har du en luftig og åpen stue- og kjøkkenløsning med direkte utgang til den store altanen som strekker seg over den doble carporten. Bakre del av altan er overbygget.
PK Hus AS og Rødshøgda AS tilbyr denne nøkkelferdige boligen.
Det vil bli etablert to kontrakter. En med tomteeier (Rødshøgda AS) for kjøp av tomt og en med PK Hus AS for kjøp av den nøkkelferdige boligen inkludert grunnarbeider.
Oppgjør for husleveransen skjer direkte til PK Hus AS etter betalingsplan regulert av Bustadoppføringslova. Byggesaksgebyrer er inkludert i kontrakten med PK Hus AS. Husprisen er fast. Selger står fritt til å endre salgsprisen på usolgt bolig.
Oppgjør for tomt Kr 1 480 000,- og tinglysning av skjøte skjer via megler – DNB Eiendom. Det tilkommer dokumentavgift 2,5 % av tomteprisen pluss tinglysningsgebyrer, totalt Kr 38 090,-, samt alle tilknytningsavgifter.
Selger tar forbehold om endelig godkjenning av prosjektet, samt pålegg fra offentlige myndigheter som kan få betydning for prosjektets utforming og fremdrift.
Beliggenheten
Huset bygges på tomt A3-1 på Rødshøgda – en sørvendt perle på 851 m².
Tomten er flat, solrik og grenser til friareal – perfekt for deg som ønsker god plass og grønne omgivelser.
Rødshøgda er Kongsbergs nye, attraktive boligområde, kun ca. 2 km fra sentrum. Her bor du landlig og rolig, men med enkel tilgang til byens fasiliteter.
Her får du:
- Familievennlig område med lekeplasser og store friarealer
- Kort vei til Kjennerudvannet med badeplass, turstier og skiløyper
- Trygg skolevei til Madsebakken barneskole og barnehage
- Gang- og sykkelavstand til sentrum med butikker, kulturtilbud og togstasjon
- Enkel adkomst til E134 mot Drammen/Oslo, samt gode bussforbindelser
Rødshøgda gir deg en unik mulighet til å bo i et naturskjønt område med alle fasiliteter innen rekkevidde. Perfekt for familier, friluftsentusiaster og alle som ønsker en god kombinasjon av natur og nærhet til byen!
Detaljer
Detaljer
Detaljer
Lokasjon
Rødshøgda, tomt A3-1
Kontaktperson
Interessert i denne eiendommen? Kontakt meg











%20%E2%80%93%20lavoppl%C3%B8selig.jpg)
